

Appartement 4 pièce(s) 3 chambre(s) 78 m²
Nice (06000)A propos de ce bien
Proche parc des Arênes. Belle résidence parfaitement entretenue année 50 avec gardien.
4P traversant de 78m2 refait neuf, prestations de qualité, vue panoramique ville et mer. 4e étage avec ascenseur.
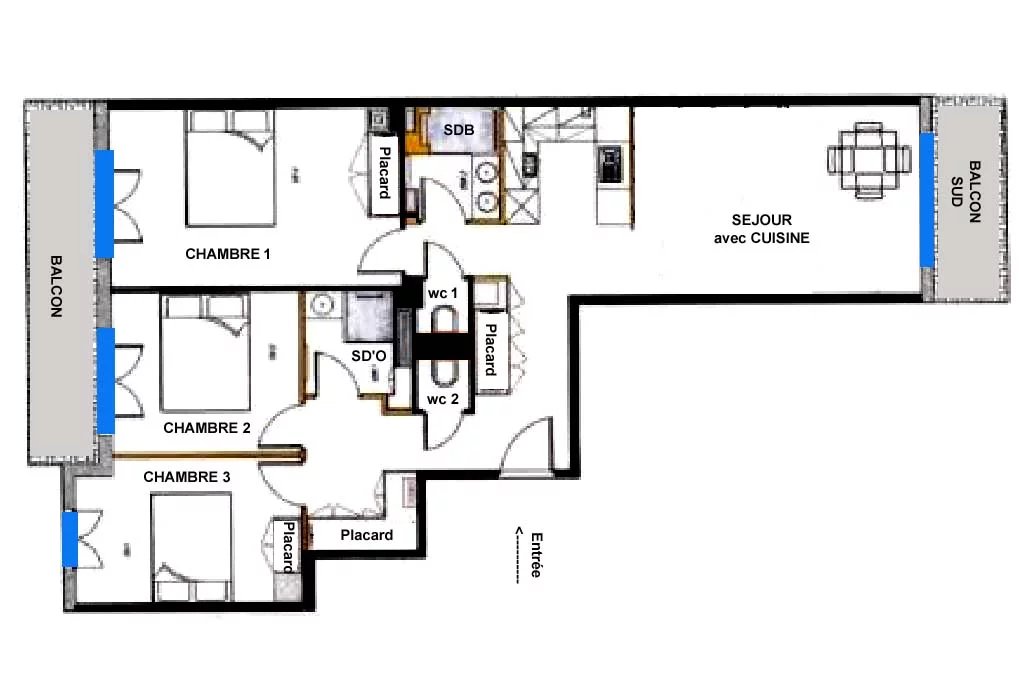
Se compose : 1 entrée avec placard, 1 séjour avec cuisine ouverte équipée, 3 chambres avec placards, 2 salles d'eau, 2 wc séparés. Climatisation. Double vitrage. Store éléctrique.
1 cave. Chauffage collectif, eau individuelle. Charges 200€/mois. T.F. 1400€.
Syndic pro, pas de procédure, 150 lots. Honoraires à charge vendeur.
Possibilité achat garage en sous-sol dans résidence.
Les informations sur les risques auxquels ce bien est exposé sont disponibles sur le site Géorisques : "georisques.gouv.fr".
Les informations sur les risques auxquels ce bien est exposé sont disponibles sur le site Géorisques
Caractéristiques de ce bien
- Surface 78 m²
- carrez 78 m²
- séjour 32 m²
- 3 chambre(s)
- cuisine américaine (équipée)
- Chauffage collectif : radiateur (autre)
- exposition Nord-Sud
- 4ème étage
- 5 étage(s)
- ascenseur
- vue Dégagée
- cave
- balcon
- terrasse
- interphone