FRANCK GUYONNET Négociateur
Télécharger la fiche
Nouveauté

Appartement 2 pièce(s) 1 chambre(s) 37 m²

Nice (06100)
192 000 € Référence 62

A propos de ce bien

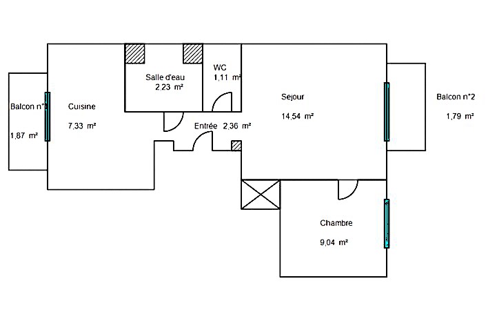
Nice Nord, Cessole Horloge, proche école St-Barthélemy et tramway Gorbella.

2P bon état 36.44 carrez + 2 balcons, au 3ᵉ étage avec ascenseur d’un immeuble bien entretenu. Traversant Nord/Sud.

Se compose d’une entrée, d’un séjour expo: SUD, sur balcon, une chambre, une cuisine semi-indépendante avec balcon au calme.

1 salle de douche moderne, et 1 toilette séparé. 1 cave en sous-sol.

Tous les sols sont carrelés, peintures refaites, chauffe-eau neuf.

Chauffage collectif + eau chaude ind. Charges: 162€/mois - TF: 940€

Honoraires à charge vendeurs.

Les informations sur les risques auxquels ce bien est exposé sont disponibles sur le site Géorisques du gouvernement.

Lien vidéo:



Les informations sur les risques auxquels ce bien est exposé sont disponibles sur le site Géorisques

Caractéristiques de ce bien

  • Surface 37 m²
  • carrez 36,77 m²
  • séjour 15 m²
  • 1 chambre(s)
  • 1 salle(s) d'eau
  • construit en 1958
  • cuisine séparée (semi-équipée)
  • Chauffage collectif : chaudière (autre)
  • exposition Nord-Sud
  • 3ème étage
  • 6 étage(s)
  • ascenseur
  • vue rue
  • cave
  • balcon
  • interphone

Diagnostics énergétiques

Consommation énergétique
A B C D E F G
Emission de gaz à effet de serre
A B C D E F G

Montant estimé des dépenses annuelles d'énergie pour un usage standard est compris entre 671 € et 907 € . Prix moyens des énergies indexés sur les années 2021, 2022 et 2023 (abonnements compris).

Informations financières

Prix de vente 192 000 € Les honoraires d'agence seront intégralement à la charge du vendeur
Charges 197 €
Taxe foncière annuelle 940 €

Informations de copropriété

Copropriété Oui
Lot n° 50
Nombre de lots 72
Quote part annuelle des charges 1 944 €
Plan de sauvegarde Non
Statut du syndic Pas de procédure en cours

Calcul des mensualités

* Champs obligatoires